Building Solutions for Grenada

www.buildgrenada.com

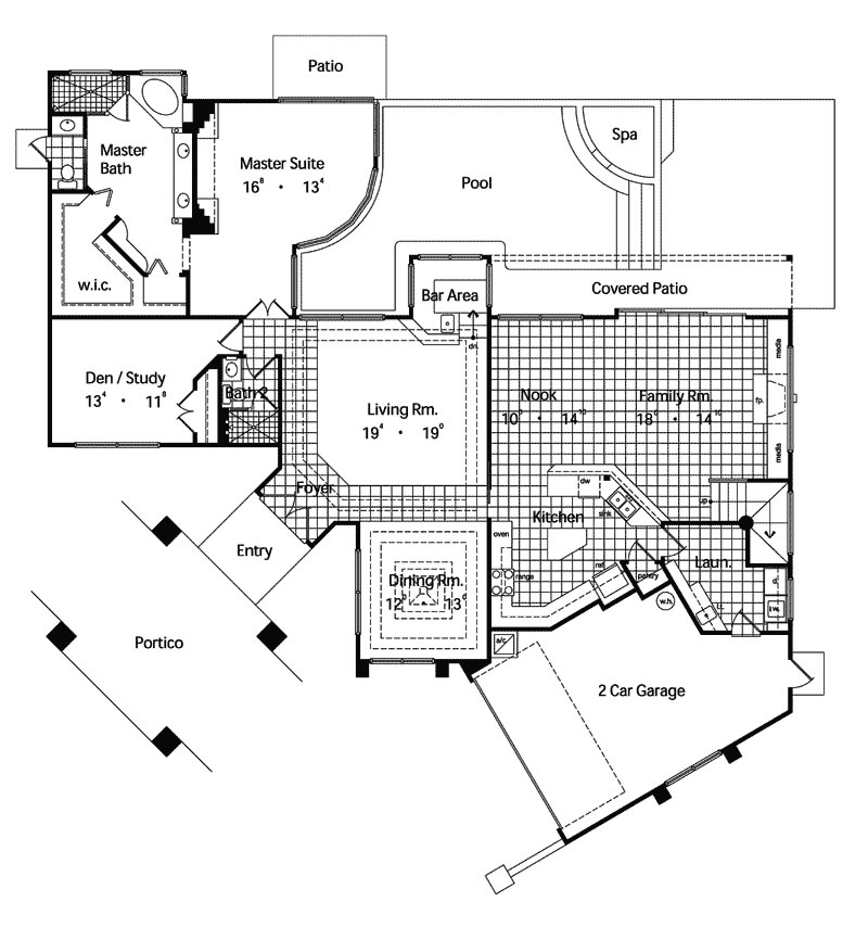
BG035 House Plan

 

Quick Look

Size  2887 sq ft

First Floor  2212 sq ft

2nd Floor  675 sq ft

Beds  4

Baths  3

Depth  70 ft. 8"

Width  74 ft. 1"

Levels  2

Standard founadtion - slab

Ready to buy a plan but can't find one that meets your specific requirements? No problem! On Buildgrenada.com can customize almost any plan to fit your needs. Select one of our ready made plans on this site, or request a free quote for any change you can imagine. Have a custom made plan drawn from scratch or upload your own design for modification.

 

Contact Us

 

 

    Special Features

 

 

    * The home was designed perfectly to feature a in-ground swimming pool that hugs the perimeter of the rear of this home for a dramatic effect

    * A striking wet bar area overlooks the outdoors and is perfect when entertaining

    * The second floor enjoys a unique observatory for viewing the surroundings

 

    Plan Features

 

    * Bar

    * Wide Lot

    * Family Room

    * Two-Story

    * Balcony - Outdoor

    * Den/Library

    * Sauna/Hot Tub

    * Multi-Level

    * Slab

    * Breakfast Nook

 

    * Main Level Master Bedroom

    * Laundry Room/Utility

    * Deep Lot

    * Patio/Veranda/Terrace

    * Office/Study

    * Pool

    * Island

    * Breakfast Bar

    * Walk-In Pantry

    * Eating Bar

 

 

 

 

 

 

A collection of gorgeous homes for those who dream of life on the water’s edge.

 

-Open floor plans with expansive views!

 

-Enjoy the beauty of a home alongside a lake, river, or ocean in this exclusive collection of homes designed for waterfront living.

Click here